Не упусти свой шанс! Последние акции от застройщиков  ▼

Продается 2-комнатная квартира, Кутузовская ул. (Новая Трехгорка мкр), 72Б

17 000 000 Р

Одинцово г. (Одинцовский гор. округ)

Кутузовская ул. (Новая Трехгорка мкр)72Б

Дата публикации: 12 марта 2026

Дата обновления: 22 марта 2026

Телефон: 
Показать телефон

+7 (499) 372-92-13

Агентство:  МИЭЛЬ

Этаж: 20 / 25

Общая: 63,5 м2

Жилая: 45,2 м2

Кухня: 7,6 м2

Комнаты: не указано

Балкон/лоджия: не указано

Лифт: не указано

Окна: окна на улицу

Санузел: совмещенный

Мусоропровод: не указано

Состояние квартиры: дизайнерский ремонт

Тип дома: монолитный

Год постройки: 2014

Территория: огороженная

Парковка: не указано

Статус сделки: продажа

Сделка: прямая продажа

Собственность: не указано

Основание права собственности: не указано

Описание

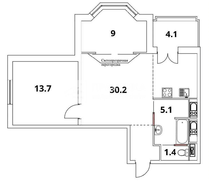
Код объекта: 2073568.Новая Трёхгорка, Одинцово. Мебелированная двухкомнатная квартира с евроремонтом.Пaнорамный вид c 20-гo этажa на парк. Описание квартиры:-2-х комнатная квартира 63,5 м2 (включая утепленную лоджию-кабинет 4,1 м2). Планировка: 2 спальни, гостиная-кухня, кабинет, раздельный санузел. Ремонт комплексный, с европейскими материалами. Кухня встроенная немецкая техника, встроенный фильтр, встроенная мебель с пластиковыми фасадами. Гостиная-спальня зонирована раздвижной перегородкой, 2-сп. кровать-трансформер. Спальня (детская) два уровня освещения. Санузел стиральная машина с сушкой, водонагреватель, электрический полотенцесушитель, сантехника - Чехия, Германия, трубы Rеhаu, система Аквастоп с датчиками протечки во всех мокрых зонах, фильтры очистки воды, две раковины со столешницей из искусственного камня Лоджия присоединена к квартире, оборудована как полноценный кабинет с теплым полом. Инженерия и отделка: электрика: немецкая проводка без распаечных коробок, розетки Lеgrаnd с защитой от детей, дифавтоматы и УЗО Lеgrаnd, несколько уровней освещения; вентиляция: кондиционеры (система обогрева внешних блоков в морозы), вытяжка на кухне, Тёплый пол во всей квартире; полы: немецкий ламинат со звукоизоляционной подложкой + керамогранит Еstimа; тёплый пол Dеvi (Дания) в зоне кухни, на лоджии и в ванной; окна: Rеhаu (пятикамерный профиль), двухкамерный стеклопакет, замки с защитой от детей Подходит как для собственного проживания, так и для сдачи в аренду. Кухня остаётся. Мебель и техника остаются. КВАРТИРА ИДЕАЛЬНО ПОДХОДИТ ДЛЯ ЖИЗНИ СЕМЕЙ С ДЕТЬМИ, Дом и двор:-Тихий зелёный двор.Дом в хорошем состоянии,рядом с домом имеется наземная парковка, поэтому можно не беспокоиться о месте для автомобиля. Транспортная доступность:- 20 минут пешком до м. Cколково или микроaвтобусом (оcтанoвкa рядoм). Инфраструктура рядом:-Live Арена, В пешей доступности расположены школы, детские сады, клиники и разнообразные магазины,инфраструктура г. Одинцово. Условия продажи:1 взрослый собственник, полная стоимость в ДКП,Звоните, приходите на просмотр!. - Работать с МИЭЛЬ выгодно и надёжно: покупателю выдаётся ПРАВОВОЙ СЕРТИФИКАТ, гарантирующий юридическую чистоту объекта; возможна ипотека с особыми условиями для клиентов МИЭЛЬ от банков-партнёров, работаем с любыми источниками финансирования (материнский капитал, военный сертификат и т.д.); бонусы по партнёрским программам МИЭЛЬ товары и услуги от известных брендов.

Квартира на карте

ПанорамыКарта

Похожие объявления

Спецпредложения
Добавить объявление